Zur Navigation wechseln Zum Inhalt wechseln Zum Footer wechseln

Juwel mit Blick in den Rednitzgrund: Architektenhaus der Extraklasse in Nürnberg-Eibach

Wohnfläche
ca. 315 m²
Grundstücksgröße
ca. 1.230 m²
Anzahl Zimmer
6,5
Anzahl Schlafzimmer
4
Anzahl Badezimmer
2
Anzahl Wohneinheiten
1
Anzahl Balkone
2
Anzahl Terrassen
1
Befeuerung
Gas, Kamin, Holz
Stellplätze
2 Freiplätze, 2 Garagen
Terrasse
Ja
Objektart
Haus
Objekttyp
Einfamilienhaus
Vermarktungsart
Kauf
Kaufpreis
1.590.000,00 €
Käuferprovision
3,57 % inkl. 19 % MwSt. vom notariellen Kaufpreis
Ort
Nürnberg / Eibach
ImmoNr
4754

Zur Immobilie

Das außergewöhnlich geschnittene Architektenhaus mit optionaler Einliegerwohnung steht in Nürnberg Eibach. Es bietet circa 315 m² Wohnfläche auf drei Etagen. Das Grundstück ist 1.230 m² groß und grenzt direkt an das Naturschutzgebiet Rednitzgrund, wodurch es zur Rückseite hin unverbaubar ist.
Das Haus setzt sich aus zwei Gebäudeteilen zusammen: der Altbau wurde 1935 erbaut und 1956 erweitert, im Rahmen einer Kernsanierung wurde 1989 der Gebäudebestand nochmals erweitert.
Dank eines zweiten Hauseingangs kann das Anwesen problemlos in ein Zweifamilienhaus umgewandelt werden.
Der Neubau ist mit einer Fußbodenheizung ausgestattet und wird von einem lichtdurchfluteten, beheizbaren Wintergarten zum Garten hin ergänzt.
Im Wohnzimmer sorgen ein Kamin mit offenem Feuer und ein Schwedenofen zusätzlich für wohlige Wärme.
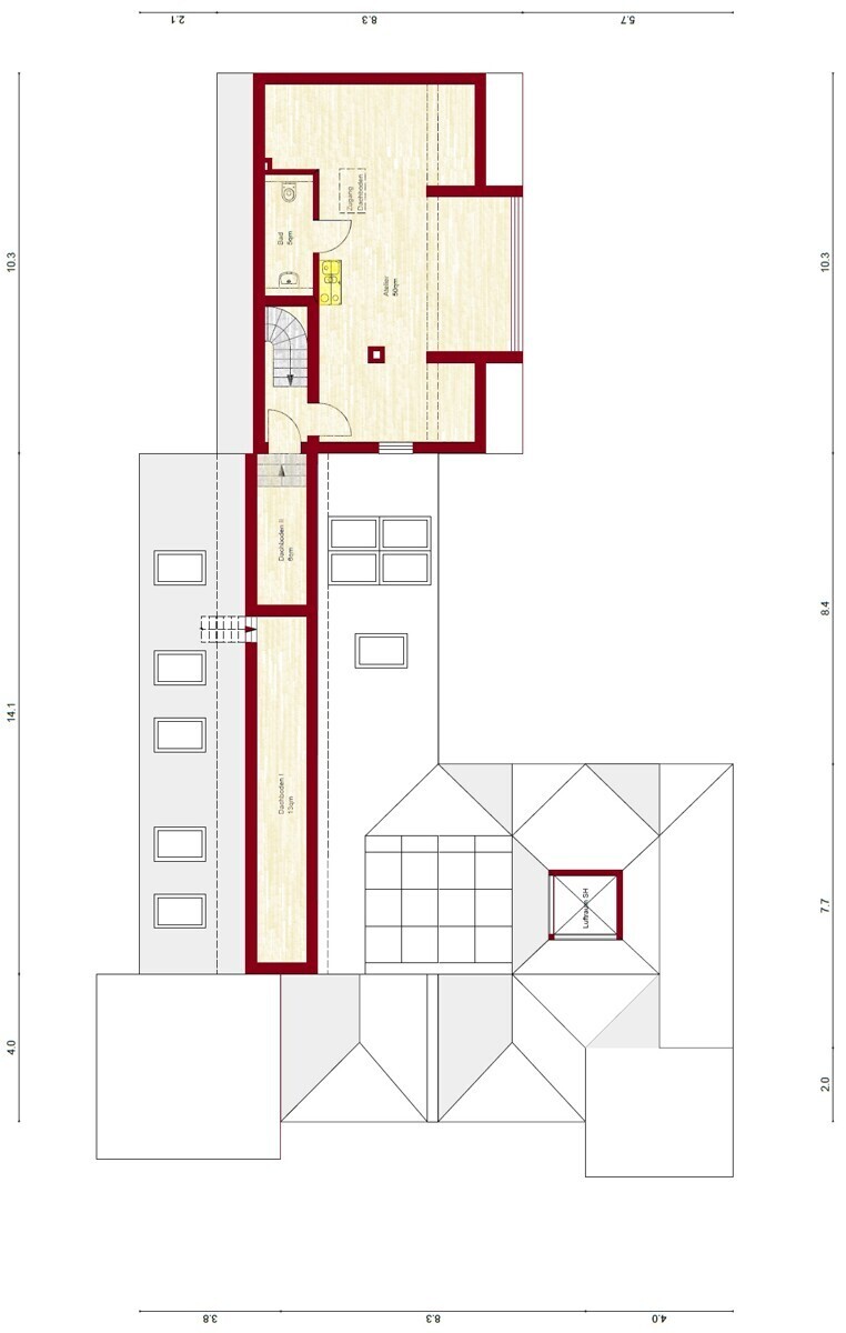
Im 1. Obergeschoss befinden sich die teilweise klimatisierten Schlafzimmer inklusive begehbarer Kleiderkammern und ein, zum Ausbau vorbereitetes, innenliegendes Schwimmbad, welches dank der pyramidenförmigen Glasdachkonstruktion mit extra viel Sonnenlicht versorgt wird. Eine großzügige Dachterrasse lädt zum Sonnenbaden ein. Das Dachgeschoss ist als Studio ausgebaut und bietet Dachböden für zusätzlichen Stauraum.
Ein großer, gepflasteter Innenhof und zwei, ins Gebäude integrierte, beheizbare Garagen mit Zugang zu Wintergarten beziehungsweise einer offenen Gartenwerkstatt runden das einzigartige Angebot ab.

– Thassos-Marmor & Echtholzböden
– offener Kamin & Schwedenofen im Wohnzimmer
– beheizbarer Wintergarten
– klimatisierter Schlafbereich
– Dachböden als zusätzlicher Stauraum
– Schwimmbad im 1. Obergeschoss zum Ausbau mit Dachterrasse
– 2 beheizbare Einzelgaragen mit angeschlossener Werkstatt
– Gaszentralheizung von 2021

A+
< 30
A
30 – 50
B
50 – 75
C
75 – 100
D
100 – 130
E
130 – 160
F
160 – 200
G
200 – 250
H
> 250
Nutzungsart
Wohnen
Baujahr Heizung lt. Energieausweis
2021
Endenergieverbrauch
93,6 kWh/(m²a)
Energieausweis
Verbrauchsausweis
Energieausweis gültig bis
15.10.2033
Energieeffizienzklasse
C
wesentlicher Energieträger
Gas

Das einzigartige Grundstück befindet sich im äußersten Süden von Nürnberg. Die anliegende Straße ist eine verkehrsberuhigte Sackgasse und vorwiegend von Einfamilienhäusern umgeben. Durch das angrenzende Naturschutzgebiet gelangt man fußläufig nach Stein oder zur Gerasmühle.
Folgende Schulen sind in Eibach ortansässig: Grundschule, Gymnasium, Realschule und sonderpädagogisches Förderzentrum. Darüber hinaus gibt es 4 Kindertagesstätten.
Die Nahversorgung ist durch Supermärkte, Bäckereien, Metzgereien, Getränkemärkte, Drogerien, Lotteriegeschäfte, Restaurants und Bars bestens gewährleistet.
Auch der Anschluss an Bundesstraße und Autobahnen sind ausgezeichnet, zudem liegt Eibach an mehreren Stadtbuslinien und der S-Bahn S2 (Nürnberg-Roth).

Ihr Ansprechpartner:
Stefan Wartzack

wartzack@wartzack-immobilien.de

Ihr Ansprechpartner

Stefan Wartzack

Herr Stefan Wartzack

Wartzack & Kollegen GmbH

Tel.:
09122 – 999 99 33
E-Mail:
wartzack@wartzack-immobilien.de

O'Brien-Straße 3
91126 Schwabach

Weitere Immobilien

Fürth

Neubau: Stadthaus im Villenviertel in Fürth-Dambach

ImmoNr
4536
Objektart
Haus
Objekttyp
Einfamilienhaus
Vermarktungsart
Kauf
Anzahl Zimmer
6
Anzahl Schlafzimmer
4
Grundstücksgröße
ca. 925 m²
Wohnfläche
ca. 132 m²

Nürnberg

Zuhaus im Glück: Doppelhaushälfte in Neukatzwang – ruhig gelegen und trotzdem zentral

ImmoNr
4663
Objektart
Haus
Objekttyp
Doppelhaushälfte
Vermarktungsart
Kauf
Anzahl Zimmer
5
Anzahl Schlafzimmer
4
Grundstücksgröße
ca. 409 m²
Wohnfläche
ca. 149 m²

Schwabach

Sehr gemütliches und gepflegtes Einfamilienhaus mit 565 m² großen Grundstück zentral in Schwabach

ImmoNr
4709
Objektart
Haus
Objekttyp
Einfamilienhaus
Vermarktungsart
Kauf
Anzahl Zimmer
3,5
Anzahl Schlafzimmer
2
Grundstücksgröße
ca. 565 m²
Wohnfläche
ca. 124 m²

Schwabach

Doppelhaushälfte für die ganze Familie mit ca. 135 m² Wohnfläche, Keller und Garage

ImmoNr
4753
Objektart
Haus
Objekttyp
Doppelhaushälfte
Vermarktungsart
Kauf
Anzahl Zimmer
5
Anzahl Schlafzimmer
4
Grundstücksgröße
ca. 379 m²
Wohnfläche
ca. 135 m²

    Ihre Anfrage zu der Immobilie „Juwel mit Blick in den Rednitzgrund: Architektenhaus der Extraklasse in Nürnberg-Eibach“ (4754)

    * Pflichtfelder